

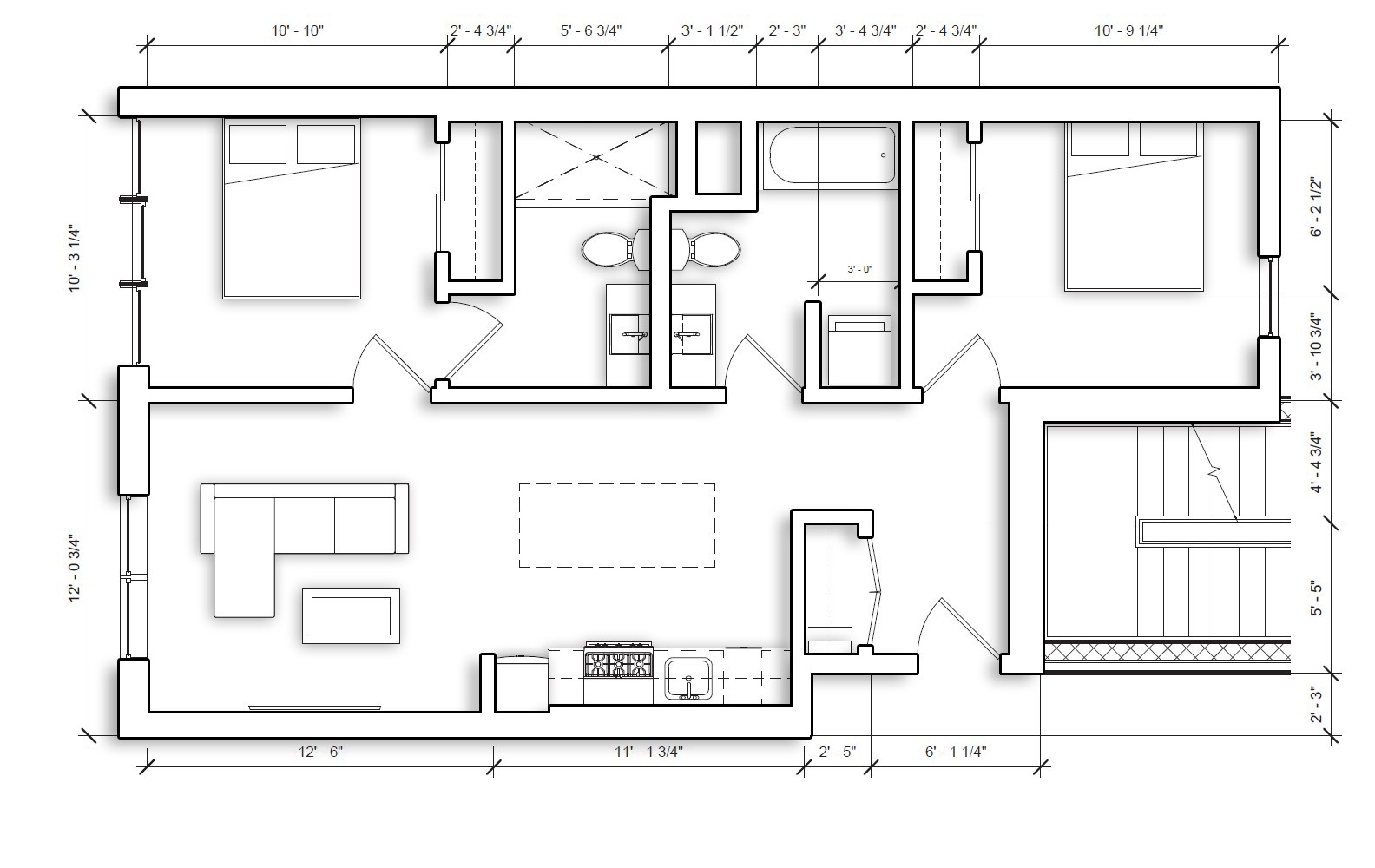
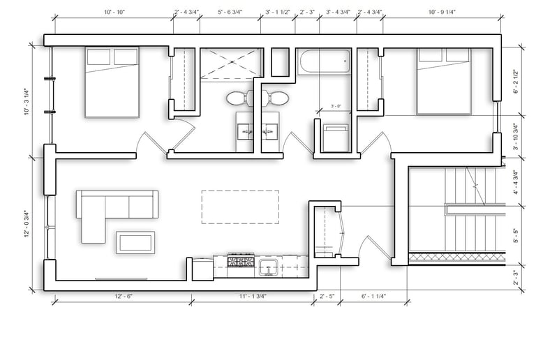
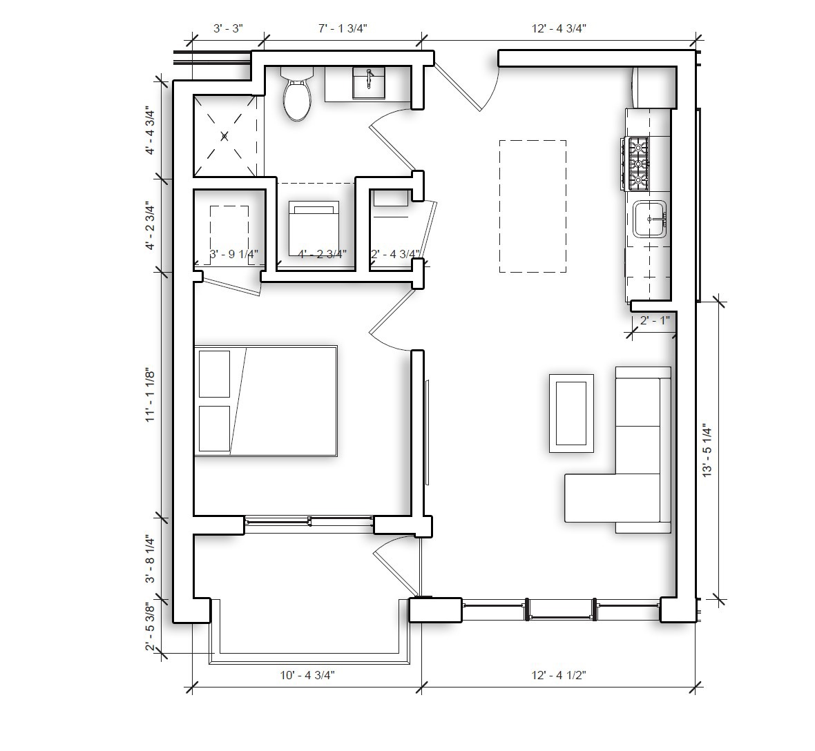
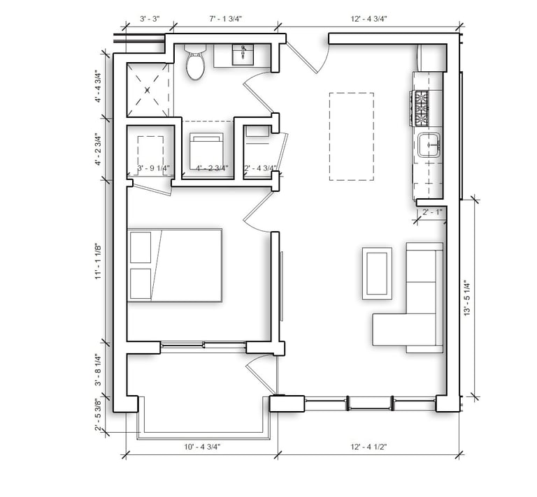
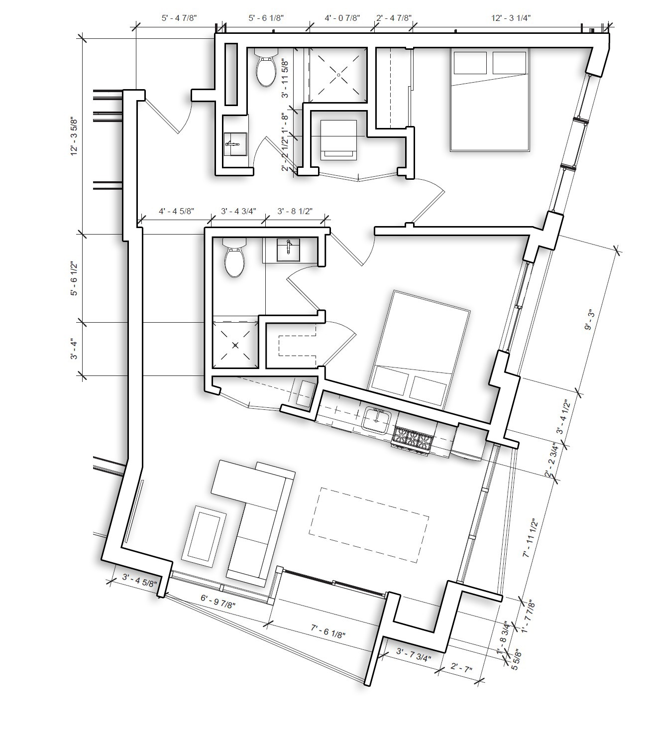
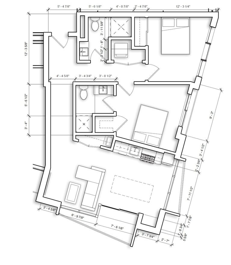
THE ARBOR.

The Arbor is a 36 unit mixed-use development in the Tacoma neighborhood of Washington DC. The structure is located on a prominent corner directly adjacent to a community park and the metro station. The project was featured in the Washington Post.
This project was completed in 2024. The designs were developed while employed at Square 134 Architects. Bryan Samuel served as the Project Architect.
Location:
Washington, DC.
Type:
Mixed-Use, Multi-Family Residential
Status:
Built
Design Team:
Ron Schneck, Samson Cheng, Bryan Samuel, Inna Nazarenko
Client:
Neighborhood Development Company
Finish Photography:
Kate Wichlinski














