

BITTER LAKE MIDDLE HOUSING.

Bitter Lake Middle Housing is a prototype for a new kind of infill in Seattle - four units on a single residential lot, demonstrating what thoughtful density can look like in an NR-zoned neighborhood.
srs. architecture has been active in shaping Seattle's middle housing landscape, authoring a comprehensive guide to help homeowners, developers, and fellow architects navigate the new codes. Bitter Lake is where that expertise meets practice.
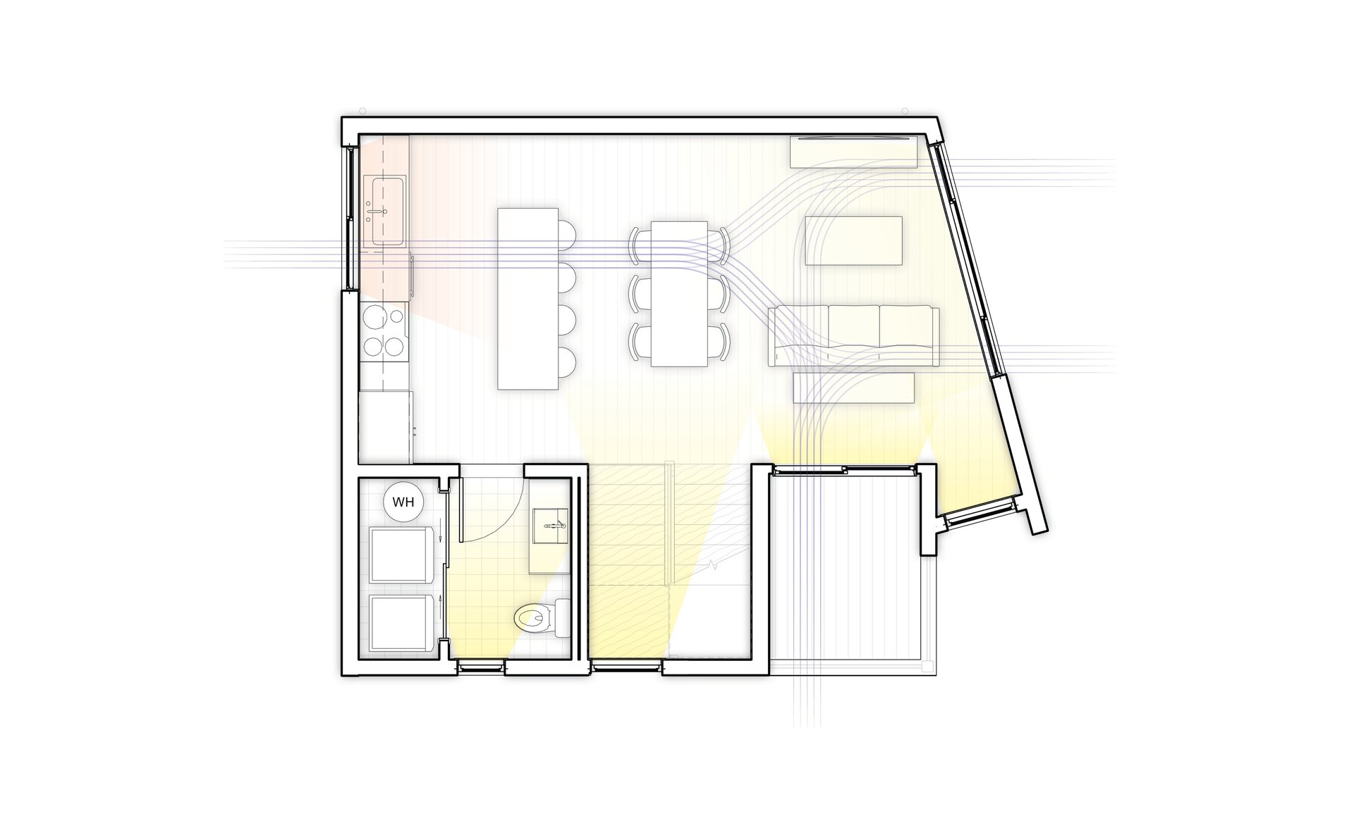
Each unit is designed simply, but with livability at its core. Every main living space receives sunlight from at least three sides and is oriented for cross ventilation — an effective strategy in Seattle's mild summers (though high-efficiency mini-split units are still provided to allow for mechanical conditioning year-round). Outdoor space is integrated into the architecture, with covered balconies for Units A and C, and roof decks for the B units.
The project began design under the interim code but, by the time of permit submission, the first phase of the permanent code had taken effect. The most significant change was a new requirement for a street-facing entry. Fortunately, staying ahead of the evolving code allowed us to adapt in time. We peeled back the geometry of Unit A to create a new angled entry — a move that also had the unexpected benefit of opening up new southern exposures to the main living space and primary bedroom.
Location:
Seattle, WA.
Type:
Middle Housing
Status:
Permit Review
Design Team:
Bryan Samuel, Daniela Sofia Leon Vergara
Contractor:
Clearwater Properties
Structural Engineer:
Sweeting Structural Design
Civil Engineer:
HL Engineering
Arborist:
Russell + Lambert Landscape Architecture








4 Units on a Single Lot
Sunlight + Cross Ventilation (Unit A)
Adjustments due to updated Zoning Codes










