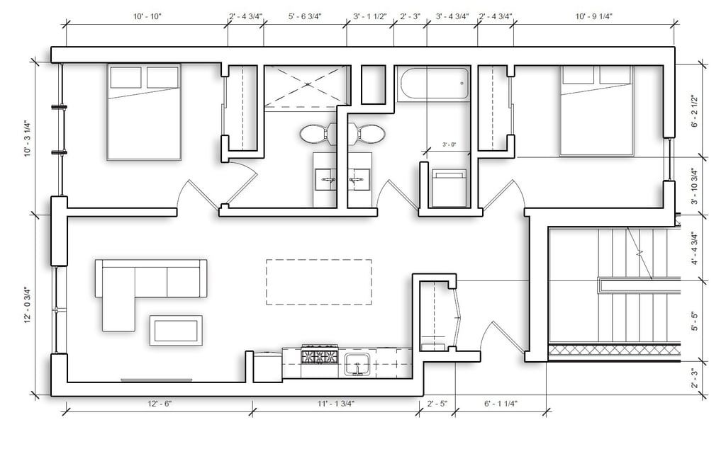
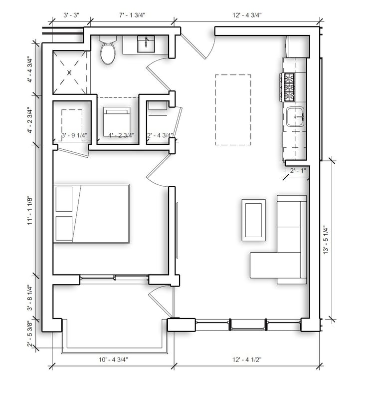
218 Cedar is a 36 unit mixed-use development in the Tacoma neighborhood of Washington DC. The structure is located on a prominent corner directly adjacent to a community park and the metro station. The project was featured in the Washington Post.
This project was completed in 2024. The designs were developed while employed at Square 134 Architects. Bryan Samuel served as the Project Architect. Finished photography was taken by Kate Wichlinski.


Tacoma Corner View
Carroll Avenue View


Cedar Street Construction Photo










