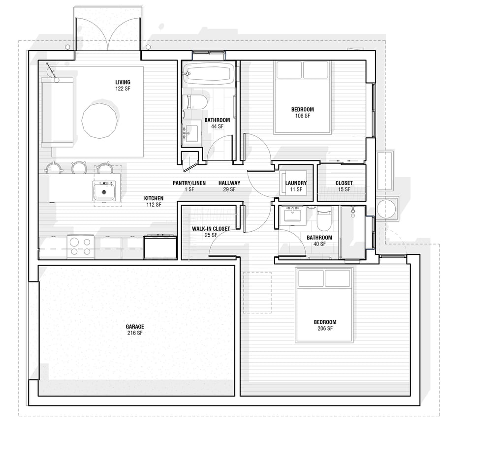
The Burlingame DADU is an efficient and budget-conscious addition for a growing family near San Francisco, California, who were keen to explore additional avenues for income generation. This 850sf two bedroom accessory dwelling unit employs carefully considered windows and bright interior surfaces to create light-filled and voluminous space within a smaller footprint.
The project is currently under construction. Bryan Samuel designed the project for Cottage.


Kitchen




